貸店舗 長野県松本市城東1丁目 2B
- 賃料7.4万円
- 共/礼/敷-/1ヶ月/1ヶ月
- 保証金
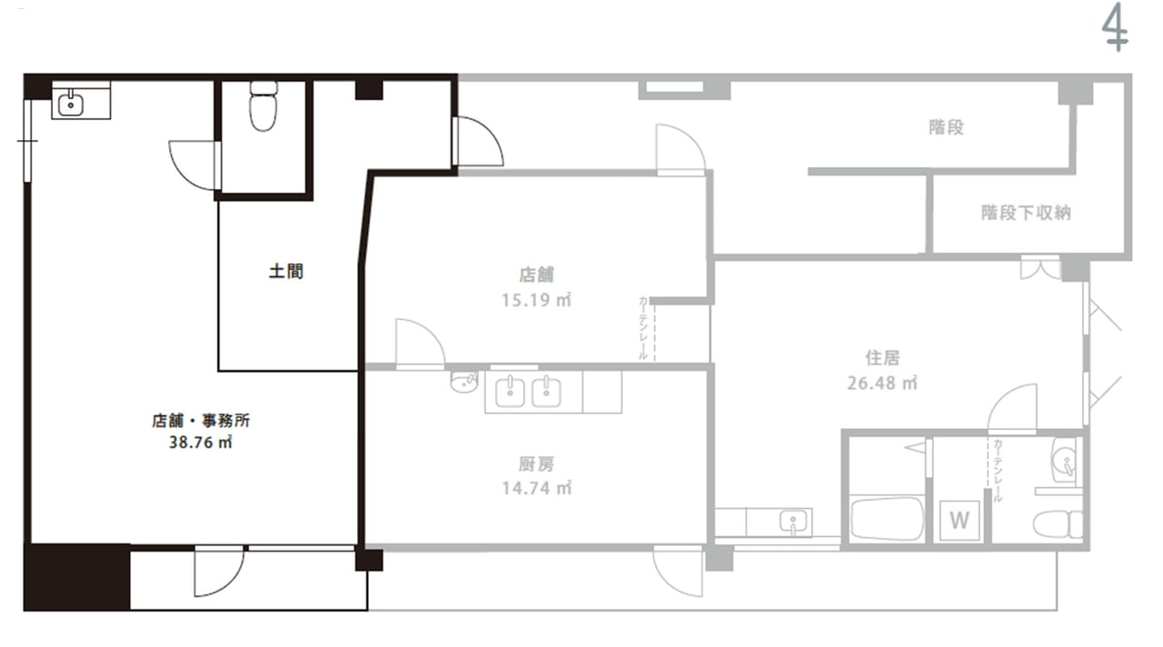
- 専有面積 38.76m² / 11.72坪
最終更新日 2026年01月08日
入口側に販売店舗や事務所の商談スペースとして活用できる土間付きのオフィス・店舗用の区画です。フリーランスや開業を考えている士業、S E 、デザイナーなどの事務所としてやクリエイターのアトリエ、販売店舗に。
(株)カネト小原
0263-32-1235
ココスマを見てとお伝えください
地図・周辺環境
※物件位置が表示されていない場合があります。
また特に外部リンク先のGoogleマップでは、実際とは異なる位置が表示される場合があります。
物件の正確な位置は必ず取扱い会社へお問合せください。
(株)カネト小原
0263-32-1235
ココスマを見てとお伝えください
物件詳細
| 賃料 | 7.4万円 |
|---|---|
| 礼金 | 1ヶ月 |
| 敷金 | 1ヶ月 |
| 専有面積 | 38.76m² / 11.72坪 |
| 所在地 | 松本市城東1丁目 |
| 部屋番号 | 2B |
| 交通 | 電車:篠ノ井線松本駅 距離1500m 徒歩22分 自動車12分 バス:美ヶ原温泉線 バス停葭町 距離190m 徒歩2分 |
| 備考 | 法人登記可 ※入居期間に限る・物販などの店舗、事務所可・管理費6,000円・保証会社・火災保険加入要・ペット不可・事務所利用:~5人想定・簡易キッチン付き・24時間ゴミ出し可・駐車場:近隣・80m(1台7,200円※別途契約)・2025年11月末~12月初旬内覧可・予定 |
| 建物構造 | 鉄骨造 |
| 建物概要 | 地上3階 2階部分 |
| 駐車場 | 近有 有料 有料一台:7200円/月 |
| 完成年月 | 1982年 |
| 契約期間 | 2年 |
| 設備 | トイレ・エアコン |
| 取引態様 | 媒介 |
| 引渡し/入居日 | 相談 |
| 物件番号 | 446171 |
| 最終更新日 | 2026-01-08 |





















