検索結果一覧に戻る

中古住宅 長野県松本市大字新村

  • 価格2150万円
  • 土地面積242.79m2
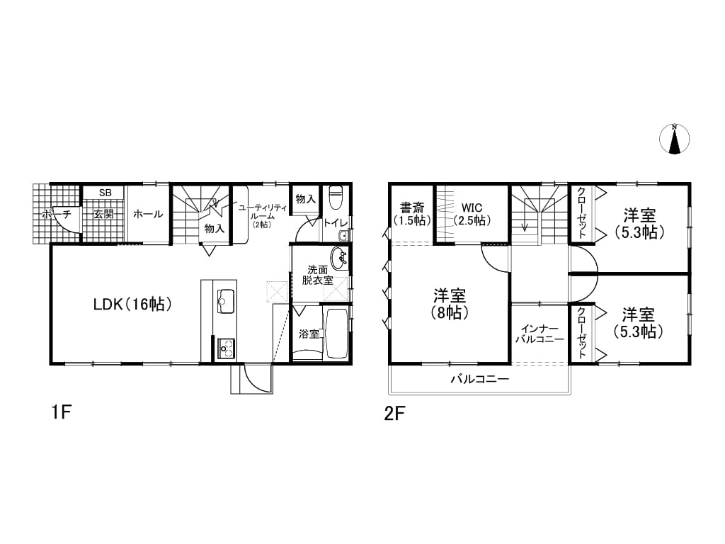
  • 間取3LDK
  • 建物面積92.73m2
  • 通学区松本市立芝沢小学校(1400m)
    松本市立高綱中学校(1200m)

最終更新日  2026年04月17日

居住中の物件ですが、日時調整の上、ご案内可能です。まずはお問合せからお待ちしております

萩原 真治
★上高地線「北新・松本大学前駅」まで徒歩7分!通勤通学に便利な好立地♪
☆家計に優しい!「太陽光発電3kW」搭載の築12年オール電化住宅!
☆駐車場は2台分のコンクリート舗装されており、
 庭スペースへも駐車可能の為、最大4台駐車可能♪
☆全居室収納付き!更に「家事室」リモートワークにもオススメの「書斎」あり!
 暮らしやすさを追求したこだわりの3LDKです♪

■LOCATION
●JA松本ハイランド新村支所まで 徒歩7分(500m)
●松本大学まで 徒歩7分(550m)
●新村郵便局まで 徒歩9分(700m)
●セブンイレブン松本新村店まで 徒歩10分(750m)
●松本市立新村保育園まで 徒歩11分(850m)
●新村ものぐさ自然公園まで 徒歩13分(1000m)
●横西産婦人科まで 車で5分(2000m)
●浅田記念クリニックまで 車で6分(2300m)
●松本ICまで 車で7分(2700m)
サンプロ不動産(株)

サンプロ不動産(株)
担当:萩原 真治 0120-503650 ココスマを見てとお伝えください

地図・周辺環境

Googleマップを開く

※物件位置が表示されていない場合があります。
また特に外部リンク先のGoogleマップでは、実際とは異なる位置が表示される場合があります。
物件の正確な位置は必ず取扱い会社へお問合せください。

サンプロ不動産(株)

サンプロ不動産(株)
担当:萩原 真治 0120-503650 ココスマを見てとお伝えください

物件詳細

価格 2150万円
土地面積 242.79m²(公簿) / 73.44坪
建物面積 92.73m² / 28.05坪
間取 3LDK
所在地 松本市大字新村
通学区 松本市立芝沢小学校(1400m)
松本市立高綱中学校(1200m)
交通 電車:松本電気鉄道北新・松本大学前駅 距離500m 徒歩7分
備考 ※契約不適合責任免責
※居住中ですが日時調整の上、ご案内可能です
建物構造 木造
建物概要 地上2階
駐車場 有 台数:2台あり
私道面積 あり 35.11m²
下水 公共下水道
完成年月日 2013年6月
施工会社 株式会社スマイルハウス
土地権利 所有権
接道状況 方角:南 道路幅員:3.7m 公私区分:公道 接面:3.43m
設備 カウンターキッチン・IHクッキングヒーター・TVモニタ付きインターホン・温水洗浄便座・バス1坪以上・追焚機能・ウォークインクローゼット・閑静住宅街・給湯・洗髪洗面化粧台・複層ガラス・上水道・下水道・電気・駐車場2台分
取引態様 専任媒介
引渡し/入居日 相談
管理番号 15550
物件番号 452360
最終更新日 2026-04-17
取扱い不動産会社

サンプロ不動産(株)

0120-503650-

「ココスマを見て」とお伝えいただくと対応がスムーズです

公開物件 38 物件 ※ご覧のココスマサイト内の公開数です
営業時間 10:00 〜 18:00
定休日 火曜日、水曜日
住所 〒399-0036
長野県松本市村井町南4-1-4
宅建番号 長野県知事免許(3)第5336号

長野県の不動産一括査定サイト ココスマ不動産売却 加盟会社

不動産探しはサンプロ不動産におまかせください!

サンプロ不動産では、物件のご案内や売買を取り扱うだけでなく、「不動産コンシェルジュ」がお客様の 「買いたい・売りたい」に関するそれぞれの疑問やお悩みを丁寧にお聞きしながら、安心で安全な不動産取引をご提供いたします。

お客様に合った最適な物件の購入や迅速な対応で安心できる売却のお手伝いから、資金計画のこ相談、注文住宅 ・ 分譲住宅の建築、リフォ ーム ・ リノベーションの施工、お引渡し後のメンテナンスに至るまで、お客様の住まいに関わる全てのサー ビスをワンストップでサポートさせていただきます。

この物件についてお問い合わせ(無料) ※取り扱い元の会社にメールが届きます

お名前必須
 姓   名
ふりがな必須
せい  めい
電話番号必須
FAX番号

※資料のFAX送付をご希望の場合は必ずご入力下さい。

E-mail必須

お住まい
※資料の郵送をご希望の場合は必ずご入力ください。

郵便番号
都道府県
市区郡町村
町名・番地
建物名等

お問い合わせ内容 必須







ご希望の条件、ご予算、その他質問事項があればご記入下さい

条件が近いほかの不動産情報

サンプロ不動産(株)の不動産情報 一覧を見る  賃貸物件を見る  売買物件を見る


ココスマ不動産売却 あなたの不動産、今いくら?家・土地を売るならまず比較!松本・安曇野・諏訪・伊那・飯田エリアの、査定・売却相談はココスマ不動産売却へ! 長野県の不動産一括査定サイト 利用料無料