中古住宅 長野県松本市蟻ケ崎5丁目
- 価格5600万円
- 土地面積680.99m2
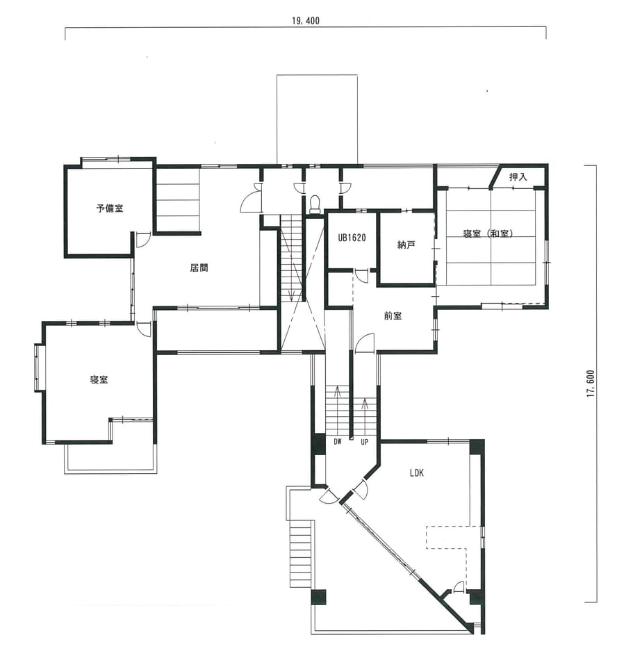
- 間取6SLDK(LDK(1階・2階)、地下倉庫あり)
- 建物面積392.02m2
- 通学区松本市立開智小学校(1200m)
松本市立丸ノ内中学校(1200m)
最終更新日 2025年11月13日
118坪鉄筋コンクリート造2階建て(地下1階倉庫付き)
(株)パナホーム長野中央
担当:藤沢幸一
0120-74-8746
ココスマを見てとお伝えください
地図・周辺環境
※物件位置が表示されていない場合があります。
また特に外部リンク先のGoogleマップでは、実際とは異なる位置が表示される場合があります。
物件の正確な位置は必ず取扱い会社へお問合せください。
(株)パナホーム長野中央
担当:藤沢幸一
0120-74-8746
ココスマを見てとお伝えください
物件詳細
| 価格 | 5600万円 |
|---|---|
| 土地面積 | 680.99m²(公簿) / 205.99坪 |
| 建物面積 | 392.02m² / 118.58坪 |
| 間取 | 6SLDK(LDK(1階・2階)、地下倉庫あり) |
| 所在地 | 松本市蟻ケ崎5丁目 |
| 通学区 | 松本市立開智小学校(1200m) 松本市立丸ノ内中学校(1200m) |
| 交通 | 電車:篠ノ井線松本駅 距離2200m 徒歩28分 自動車11分 電車:大糸線北松本駅 距離1800m 徒歩23分 自動車7分 高速道路:長野道 松本I.C. 車14分 |
| 建物構造 | RC |
| 建物概要 | 地上2階 地下1階 |
| 駐車場 | 有 台数:4台あり |
| 下水 | 公共下水道 |
| 完成年月日 | 1990年4月 |
| 土地権利 | 所有権 |
| 接道状況 | 方角:南 道路幅員:4m 公私区分:公道 接面:23m |
| 設備 | システムキッチン・BT別室・温水洗浄便座・トイレ2箇所・庭・バルコニー・ウォークインクローゼット・日当り良好・二世帯向き・閑静住宅街・給湯・洗髪洗面化粧台・下水道・電気 |
| 取引態様 | 一般媒介 |
| 引渡し/入居日 | 相談 |
| 管理番号 | 20251106 |
| 物件番号 | 447023 |
| 最終更新日 | 2025-11-13 |


























