貸店舗 長野県松本市庄内1丁目7-16 日邦バルブ貸店舗兼工場
- 賃料49.5万円
- 共/礼/敷-/1ヶ月/総額99万円
- 保証金
- 専有面積 326.26m² / 98.69坪
最終更新日 2026年03月18日
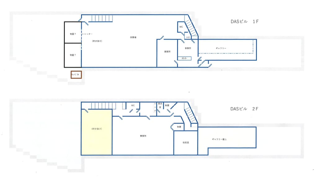
1F~2Fまで一棟貸し希望 ★飲食店相談可 ★現状貸し ★内装は借主様にて工事可能(貸主承諾必要)
(株)アスピア
0263-32-1151
ココスマを見てとお伝えください
地図・周辺環境
※物件位置が表示されていない場合があります。
また特に外部リンク先のGoogleマップでは、実際とは異なる位置が表示される場合があります。
物件の正確な位置は必ず取扱い会社へお問合せください。
(株)アスピア
0263-32-1151
ココスマを見てとお伝えください
物件詳細
| 賃料 | 49.5万円 |
|---|---|
| 礼金 | 1ヶ月 |
| 敷金 | 総額99万円 |
| 専有面積 | 326.26m² / 98.69坪 |
| 所在地 | 松本市庄内1丁目7-16 |
| 建物名 | 日邦バルブ貸店舗兼工場 |
| 交通 | 電車:篠ノ井線松本駅 距離1200m 徒歩15分 高速道路:長野道 松本I.C. 車25分 |
| 備考 | 保証契約:株式会社USENTRUST 個人契約は必須 法人契約でも規模などによりご契約をお願いしております。契約時初回保証料:月額賃料の100%、年間保証委託料:月額賃料の10%(最低保証料10,000円)/年 更新:賃貸借契約更新の際は更新手数料20,000円(税別)がかかります。 町会費:別途 駐車場:敷地外の駐車場は借主様にてお探し下さい。 |
| 建物構造 | 鉄骨造 |
| 建物概要 | 地上2階 |
| 駐車場 | 有 (車種などにより駐車可能台数変わります。) 台数:5台あり |
| 完成年月 | 1998年3月 |
| 保険 | 株式会社USEN保険 |
| 契約期間 | 3年 |
| 設備 | トイレ・男女別トイレ・飲食店可 |
| 取引態様 | 媒介 |
| 手数料 | 手数料必要 |
| 引渡し/入居日 | 即可能 |
| 物件番号 | 441770 |
| 最終更新日 | 2026-03-18 |














































