貸店舗 長野県松本市中央1丁目10-1 貸店舗・事務所
- 賃料20万円
- 共/礼/敷-/1ヶ月/3ヶ月
- 保証金
- 専有面積 84.56m² / 25.57坪
最終更新日 2026年02月24日
松本駅近く便利。徒歩4分
西・南角地、見通し良。
飲食店不可。
エステ・サロン・美容院・事務所
スケルトン渡し。
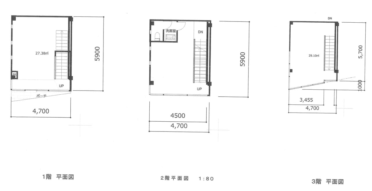
3階建。1階~3階一括。
1階 27.73㎡。
2階 27.73㎡。
3階 29.10㎡。
合計84.56㎡(25.57坪)
引渡し3月下旬。
(有)光和不動産
0263-35-0560
ココスマを見てとお伝えください
地図・周辺環境
※物件位置が表示されていない場合があります。
また特に外部リンク先のGoogleマップでは、実際とは異なる位置が表示される場合があります。
物件の正確な位置は必ず取扱い会社へお問合せください。
(有)光和不動産
0263-35-0560
ココスマを見てとお伝えください
物件詳細
| 賃料 | 20万円 |
|---|---|
| 礼金 | 1ヶ月 |
| 敷金 | 3ヶ月 |
| 専有面積 | 84.56m² / 25.57坪 |
| 所在地 | 松本市中央1丁目10-1 |
| 建物名 | 貸店舗・事務所 |
| 交通 | 電車:篠ノ井線松本駅 距離287m 徒歩4分 |
| 備考 | 松本駅近く便利。徒歩4分 西・南角地、見通し良。 飲食店不可。 エステ・サロン・美容院・事務所 スケルトン渡し。 保証委託加入必須。 3階建。1階~3階一括。 1階 27.73㎡。 2階 27.73㎡。 3階 29.10㎡。 合計84.56㎡(25.57坪) 引渡し3月下旬。 |
| 建物構造 | 鉄骨造 |
| 建物概要 | 地上3階 |
| 駐車場 | 無 |
| 完成年月 | 1999年11月 |
| 契約期間 | 5年 |
| 設備 | トイレ・飲食店不可・OAフロア・スケルトン |
| 取引態様 | 専任媒介 |
| 手数料 | 手数料必要 |
| 引渡し/入居日 | 2026年3月下旬 予定 |
| 物件番号 | 363812 |
| 最終更新日 | 2026-02-24 |





























