中古住宅 長野県松本市寿台2丁目6-8
- 価格600万円
- 土地面積107.1m2
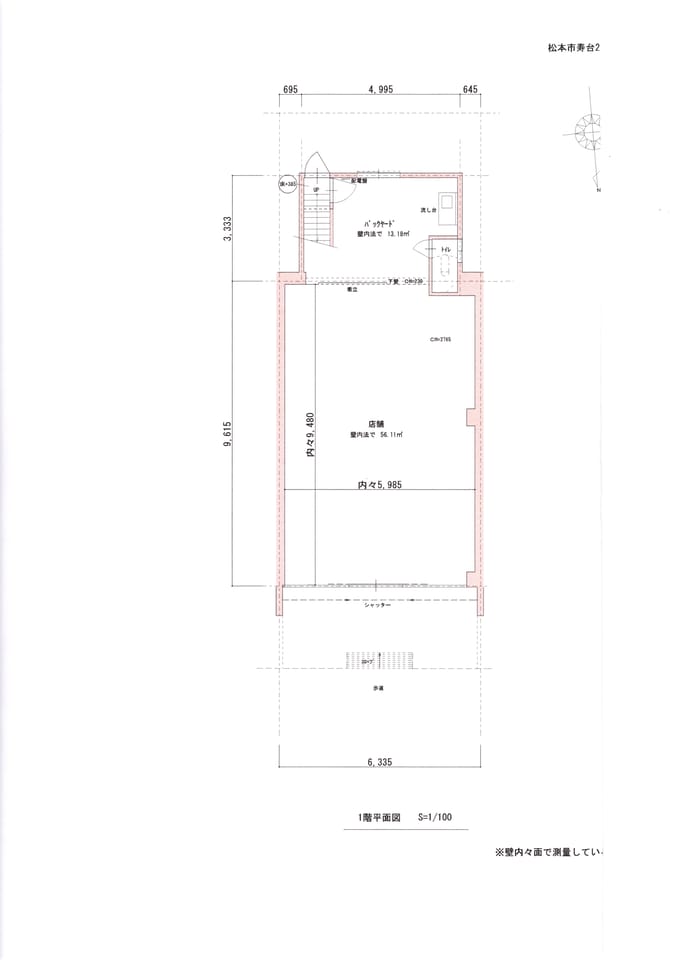
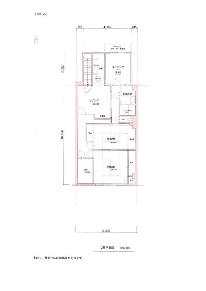
- 間取3DK(和8・和6・洋5.8・DK6)
- 建物面積115.39m2
- 通学区松本市立明善小学校(1200m)
松本市立明善中学校(1500m)
最終更新日 2026年03月07日
鉄筋コンクリート造の区分所有建物
中島不動産
担当:中島一郎
0263-87-7170
ココスマを見てとお伝えください
地図・周辺環境
※物件位置が表示されていない場合があります。
また特に外部リンク先のGoogleマップでは、実際とは異なる位置が表示される場合があります。
物件の正確な位置は必ず取扱い会社へお問合せください。
中島不動産
担当:中島一郎
0263-87-7170
ココスマを見てとお伝えください
物件詳細
| 価格 | 600万円 |
|---|---|
| 土地面積 | 107.1m²(公簿) / 32.39坪 |
| 建物面積 | 115.39m² / 34.9坪 |
| 間取 | 3DK(和8・和6・洋5.8・DK6) |
| 所在地 | 松本市寿台2丁目6-8 (1-258) |
| 通学区 | 松本市立明善小学校(1200m) 松本市立明善中学校(1500m) |
| 交通 | 電車:篠ノ井線村井駅 距離2350m バス:アルピコバス線 バス停寿台西口 距離150m 高速道路:長野道 塩尻北I.C. 車10分 |
| 備考 | 建物増築部分あり、未登記。(増築登記後引渡し) 土地1番244(442.93㎡)・1番249(64.01㎡)1番255(203.84㎡)・1番269(729.75㎡)の4筆合計1440.53㎡は共有持分1分の22(駐車場として利用。) |
| 建物構造 | RC |
| 建物概要 | 地上2階 |
| 駐車場 | 有 (共有持分の駐車場あり) 台数:3台あり |
| 下水 | 公共下水道 |
| 完成年月日 | 1970年12月 |
| 土地権利 | 所有権 |
| 接道状況 | 方角:北 道路幅員:11.65m 公私区分:公道 接面:6.3m |
| 設備 | BT別室・トイレ2箇所・バルコニー・照明器具付き・都市ガス・上水道・下水道・電気・駐車場3台分 |
| 取引態様 | 専任媒介 |
| 手数料 | 手数料必要 |
| 引渡し/入居日 | 相談 |
| 物件番号 | 398863 |
| 最終更新日 | 2026-03-07 |



























