中古住宅 長野県松本市大字島内3872
- 価格4750万円
- 土地面積533.95m2
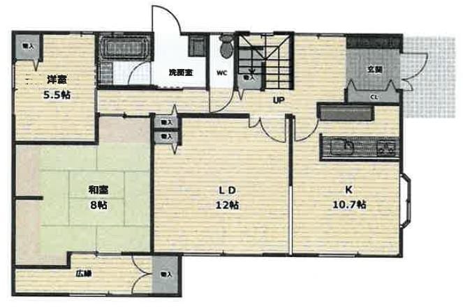
- 間取5SLDK(LDK22.7帖、洋室8帖・6帖・6帖・5.5帖、和室8帖)
- 建物面積156.26m2
- 通学区松本市立島内小学校(1200m)
松本市立松島中学校(930m)
最終更新日 2026年03月12日
土地広々161坪に日当たり良好な5SLDK、水回りは新品交換済みのカウンターキッチン仕様★便利な食洗機・浴室乾燥機・2Fトイレにウォークインクローゼット完備☆結露対策のペアガラス&バリアフリー構造☆
佐藤不動産
0263-87-8093
ココスマを見てとお伝えください
地図・周辺環境
※物件位置が表示されていない場合があります。
また特に外部リンク先のGoogleマップでは、実際とは異なる位置が表示される場合があります。
物件の正確な位置は必ず取扱い会社へお問合せください。
佐藤不動産
0263-87-8093
ココスマを見てとお伝えください
物件詳細
| 価格 | 4750万円 |
|---|---|
| 土地面積 | 533.95m²(実測) / 161.51坪 |
| 建物面積 | 156.26m² / 47.26坪 |
| 間取 | 5SLDK(LDK22.7帖、洋室8帖・6帖・6帖・5.5帖、和室8帖) |
| 所在地 | 松本市大字島内3872 |
| 通学区 | 松本市立島内小学校(1200m) 松本市立松島中学校(930m) |
| 交通 | 電車:大糸線島内駅 距離720m 徒歩9分 |
| 備考 | 住宅ローン返済例:4750万円借入の場合(諸費用自己資金) 40年ローン 金利1.2% 全期間変動金利 ボーナス払い無し 月々:124,649円 |
| 建物構造 | 軽量鉄骨造 |
| 建物概要 | 地上2階 |
| 駐車場 | 有 台数:8台あり |
| 下水 | 公共下水道 |
| 湯権 | 無 |
| 完成年月日 | 1997年8月 |
| 施工会社 | ダイワハウス |
| 土地権利 | 所有権 |
| 設備 | システムキッチン・カウンターキッチン・IHクッキングヒーター・食器洗浄乾燥機・TVモニタ付きインターホン・インターホン・ディンプルキー・BT別室・暖房便座・温水洗浄便座・オートバス・浴室乾燥機・バス1坪以上・トイレ2箇所・追焚機能・庭・バルコニー・ウォークインクローゼット・日当り良好・バリアフリー・二世帯向き・閑静住宅街・リフォーム済み・オール電化・セットバック済・給湯・洗髪洗面化粧台・照明器具付き・複層ガラス・上水道・下水道・電気・駐車場3台分 |
| 取引態様 | 媒介 |
| 手数料 | 手数料必要 |
| 引渡し/入居日 | 即可能 |
| 物件番号 | 451037 |
| 最終更新日 | 2026-03-12 |






























