新築住宅 長野県松本市井川城2丁目 FelidiaGarden松本市井川城 全5区画 4号棟
- 価格3990万円
- 土地面積191.92m2
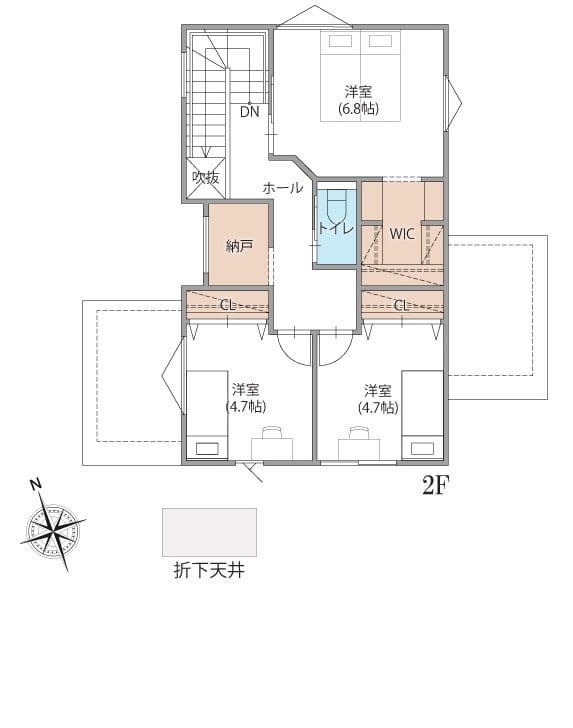
- 間取3LDK
- 建物面積105.77m2
- 通学区松本市立鎌田小学校(850m)
松本市立鎌田中学校(1300m)
最終更新日 2026年04月11日
※4/4価格改定しました。
(株)ヤマダホームズ松本店
0263-24-3200
ココスマを見てとお伝えください
地図・周辺環境
※物件位置が表示されていない場合があります。
また特に外部リンク先のGoogleマップでは、実際とは異なる位置が表示される場合があります。
物件の正確な位置は必ず取扱い会社へお問合せください。
(株)ヤマダホームズ松本店
0263-24-3200
ココスマを見てとお伝えください
物件詳細
| 価格 | 3990万円 |
|---|---|
| 土地面積 | 191.92m²(公簿) / 58.05坪 |
| 建物面積 | 105.77m² / 31.99坪 |
| 間取 | 3LDK |
| 所在地 | 松本市井川城2丁目 |
| 建物名 | FelidiaGarden松本市井川城 全5区画 4号棟 |
| 通学区 | 松本市立鎌田小学校(850m) 松本市立鎌田中学校(1300m) |
| 建物構造 | 木造 |
| 建物概要 | 地上2階 |
| 駐車場 | 有 |
| 完成年月日 | 2025年11月 |
| 施工会社 | 株式会社ヤマダホームズ |
| 土地権利 | 所有権 |
| 接道状況 | 方角:北 道路幅員:4.7m 公私区分:公道 |
| 設備 | システムキッチン・IHクッキングヒーター・食器洗浄乾燥機・TVモニタ付きインターホン・BT別室・浴室乾燥機・バス1坪以上・トイレ2箇所・追焚機能・ウォークインクローゼット・閑静住宅街・24時間換気システム・オール電化・給湯・洗髪洗面化粧台・複層ガラス・上水道・下水道・電気 |
| 取引態様 | 売主 |
| 引渡し/入居日 | 相談 |
| 物件番号 | 443699 |
| 最終更新日 | 2026-04-11 |






















