新築住宅 長野県塩尻市大字大門 セキュレア塩尻大門 3号地
- 価格3380万円
- 土地面積211.08m2
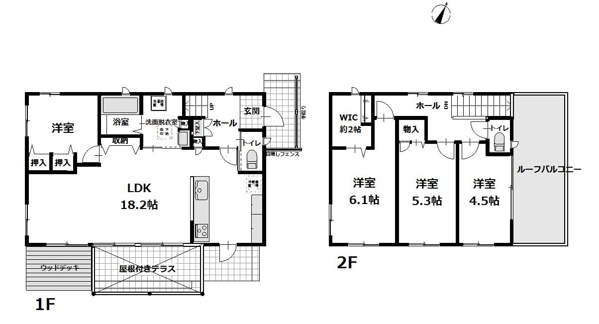
- 間取2LDK
- 建物面積76.34m2
- 通学区塩尻市立桔梗小学校(1600m)
塩尻市立広陵中学校(2700m)
最終更新日 2025年10月03日
耐震等級3!オール電化太陽光発電システム搭載!災害時に心強いポータブル蓄電池も付いています♪
(株)Be-Style諏訪支店
0266-78-7620
ココスマを見てとお伝えください
地図・周辺環境
※物件位置が表示されていない場合があります。
また特に外部リンク先のGoogleマップでは、実際とは異なる位置が表示される場合があります。
物件の正確な位置は必ず取扱い会社へお問合せください。
(株)Be-Style諏訪支店
0266-78-7620
ココスマを見てとお伝えください
物件詳細
| 価格 | 3380万円 |
|---|---|
| 土地面積 | 211.08m²(公簿) / 63.85坪 |
| 建物面積 | 76.34m² / 23.09坪 |
| 間取 | 2LDK |
| 所在地 | 塩尻市大字大門 |
| 建物名 | セキュレア塩尻大門 3号地 |
| 通学区 | 塩尻市立桔梗小学校(1600m) 塩尻市立広陵中学校(2700m) |
| 交通 | 電車:篠ノ井線塩尻駅 距離260m 徒歩4分 |
| 建物構造 | 軽量鉄骨造 |
| 建物概要 | 地上1階 |
| 駐車場 | 有 台数:2台あり |
| 下水 | 公共下水道 |
| 完成年月日 | 2024年4月 |
| 施工会社 | 大和ハウス工業株式会社 |
| 土地権利 | 所有権 |
| 接道状況 | 方角:南 道路幅員:4.2m 公私区分:公道 |
| 設備 | システムキッチン・カウンターキッチン・IHクッキングヒーター・食器洗浄乾燥機・TVモニタ付きインターホン・ディンプルキー・防犯用ガラス・火災警報器(報知機)・BT別室・暖房便座・温水洗浄便座・オートバス・浴室乾燥機・バス1坪以上・追焚機能・エアコン・ウォークインクローゼット・日当り良好・24時間換気システム・オール電化・設計住宅性能評価書・建築住宅性能評価書・長期優良住宅認定・給湯・洗髪洗面化粧台・照明器具付き・プロパンガス・複層ガラス・上水道・下水道・電気・駐車場2台分 |
| 取引態様 | 媒介 |
| 手数料 | 手数料必要 |
| 引渡し/入居日 | 即可能 |
| 物件番号 | 431216 |
| 最終更新日 | 2025-10-03 |
























