事業用建物 長野県松本市大手2丁目10-3 大手ビル
- 価格18500万円
- 土地面積457.92m2
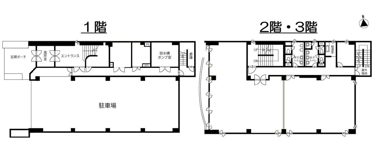
- 間取ワンルーム(各階1R(ロッカールーム・給湯室・男女別トイレ)1階倉庫あり)
- 建物面積1005.59m2
最終更新日 2026年01月27日
自社ビルや収益物件、事業用物件をお探しの方にぜひご検討いただきたい一棟物件です。
検査・修復歴記録有り。
物件状況・管理状況共に良好です。
マスター不動産(株)
0263-87-7068
ココスマを見てとお伝えください
地図・周辺環境
※物件位置が表示されていない場合があります。
また特に外部リンク先のGoogleマップでは、実際とは異なる位置が表示される場合があります。
物件の正確な位置は必ず取扱い会社へお問合せください。
マスター不動産(株)
0263-87-7068
ココスマを見てとお伝えください
物件詳細
| 価格 | 18500万円 |
|---|---|
| 土地面積 | 457.92m²(公簿) / 138.52坪 |
| 建物面積 | 1005.59m² / 304.19坪 |
| 間取 | ワンルーム(各階1R(ロッカールーム・給湯室・男女別トイレ)1階倉庫あり) |
| 所在地 | 松本市大手2丁目10-3 |
| 建物名 | 大手ビル |
| 交通 | 電車:大糸線松本駅 徒歩10分 電車:大糸線北松本駅 徒歩8分 高速道路:長野道 松本I.C. 車10分 |
| 備考 | ※各階に男女別トイレ・ロッカールーム・給湯室あり ※1階に小倉庫×2あり ※高圧キュービクル |
| 建物構造 | RC |
| 建物概要 | 地上3階 |
| 駐車場 | 有 台数:8台あり |
| 下水 | 公共下水道 |
| 完成年月日 | 1990年3月 |
| 土地権利 | 所有権 |
| 接道状況 | 方角:西 道路幅員:15m 公私区分:公道 接面:15.5m |
| 設備 | 火災警報器(報知機)・エアコン・建築確認完了検査済証・新築時・増改築時の設計図書・修繕・点検の記録・給湯・都市ガス・上水道・下水道・電気 |
| 取引態様 | 売主 |
| 手数料 | 不要 |
| 引渡し/入居日 | 相談 |
| 管理番号 | 911 |
| 物件番号 | 442905 |
| 最終更新日 | 2026-01-27 |






























