新築住宅 長野県塩尻市大字塩尻町 クレイドルガーデン塩尻市塩尻町第10 1号棟
- 価格2580万円
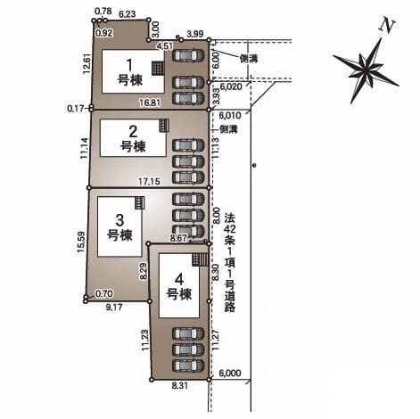
- 土地面積189.16m2
- 間取4SLDK
- 建物面積100.44m2
- 通学区塩尻市立塩尻東小学校(1100m)
塩尻市立塩尻中学校(1700m)
最終更新日 2026年01月16日
新築建売住宅♪商業施設まで車8分♪子育てにも安心♪駐車スペースあり3台駐車可能!各居室収納充実!星野リゾート宿泊ギフト券10万円分ほか選べる家電などご成約特典あり☆
当物件周辺の商業施設、防災マップなど気になる情報が載っている資料となります。
是非ご検討下さいませ!
オンラインでのご案内も承っております。
(Zoom, Google Meet, LINE電話等)
遠方の方、お忙しい方もお気軽にご利用いただけます!
資金計画のお手伝いもさせていただきます♪
借入額、毎月の返済額、どの銀行にしようかなどお客様に合った資金計画をご提案させて頂きます!
お気軽にご相談くださいませ♪
土・日・祝日もご対応致しますので、事前にご相談ください♪
お電話・メール・LINEにて、お待ちしております。
信州Alps不動産(株)
担当:小城 慈織
0263-60-9669
ココスマを見てとお伝えください
地図・周辺環境
※物件位置が表示されていない場合があります。
また特に外部リンク先のGoogleマップでは、実際とは異なる位置が表示される場合があります。
物件の正確な位置は必ず取扱い会社へお問合せください。
信州Alps不動産(株)
担当:小城 慈織
0263-60-9669
ココスマを見てとお伝えください
物件詳細
| 価格 | 2580万円 |
|---|---|
| 土地面積 | 189.16m²(公簿) / 57.22坪 |
| 建物面積 | 100.44m² / 30.38坪 |
| 間取 | 4SLDK |
| 所在地 | 塩尻市大字塩尻町 |
| 建物名 | クレイドルガーデン塩尻市塩尻町第10 |
| 部屋番号 | 1号棟 |
| 通学区 | 塩尻市立塩尻東小学校(1100m) 塩尻市立塩尻中学校(1700m) |
| 交通 | 電車:中央本線みどり湖駅 距離1400m 徒歩18分 自動車5分 |
| 建物構造 | 木造 |
| 建物概要 | 地上2階 |
| 駐車場 | 有 台数:3台あり |
| 下水 | 公共下水道 |
| 完成年月日 | 2025年12月 |
| 施工会社 | 株式会社アーネストワン |
| 土地権利 | 所有権 |
| 接道状況 | 方角:北東 道路幅員:6m 公私区分:公道 |
| 設備 | システムキッチン・カウンターキッチン・TVモニタ付きインターホン・防犯カメラ・火災警報器(報知機)・BT別室・温水洗浄便座・オートバス・バス1坪以上・トイレ2箇所・追焚機能・庭・ルーフバルコニー・エアコン・日当り良好・閑静住宅街・設計住宅性能評価書・建築住宅性能評価書・給湯・洗髪洗面化粧台・照明器具付き・プロパンガス・複層ガラス・上水道・下水道・電気・駐車場3台分 |
| 取引態様 | 一般媒介 |
| 手数料 | 手数料必要 |
| 引渡し/入居日 | 相談 |
| 物件番号 | 449120 |
| 最終更新日 | 2026-01-16 |












































