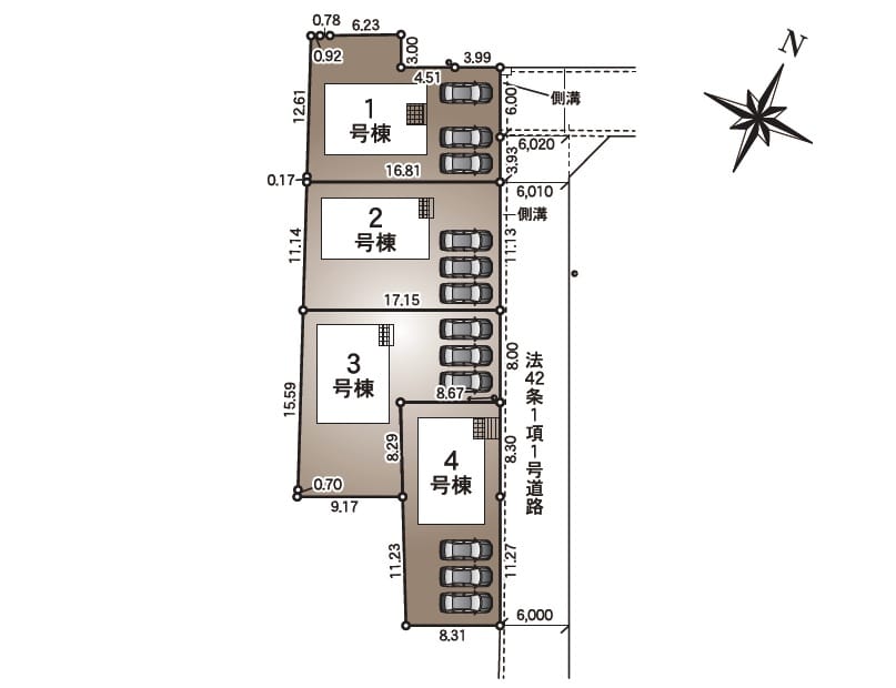
新築住宅 長野県塩尻市大字塩尻町 クレイドルガーデン塩尻市塩尻町第10 4号棟
- 価格2480万円
- 土地面積166.18m2
- 間取4SLDK(LDK20帖、洋室6.6帖・5.2帖・5.2帖・5帖、納戸1.1帖)
- 建物面積101.65m2
- 通学区塩尻市立塩尻東小学校(839m)
塩尻市立塩尻中学校(1095m)
最終更新日 2026年02月13日
☆オープン2周年記念キャンペーン実施中☆ 仲介手数料等ご相談承ります♪
YMR不動産/(株)YMR
0263-88-8470
ココスマを見てとお伝えください
地図・周辺環境
※物件位置が表示されていない場合があります。
また特に外部リンク先のGoogleマップでは、実際とは異なる位置が表示される場合があります。
物件の正確な位置は必ず取扱い会社へお問合せください。
YMR不動産/(株)YMR
0263-88-8470
ココスマを見てとお伝えください
物件詳細
| 価格 | 2480万円 |
|---|---|
| 土地面積 | 166.18m²(公簿) / 50.26坪 |
| 建物面積 | 101.65m² / 30.74坪 |
| 間取 | 4SLDK(LDK20帖、洋室6.6帖・5.2帖・5.2帖・5帖、納戸1.1帖) |
| 所在地 | 塩尻市大字塩尻町 |
| 建物名 | クレイドルガーデン塩尻市塩尻町第10 |
| 部屋番号 | 4号棟 |
| 通学区 | 塩尻市立塩尻東小学校(839m) 塩尻市立塩尻中学校(1095m) |
| 交通 | 電車:中央本線みどり湖駅 距離1700m 徒歩21分 |
| 備考 | 景観法 都市再生特別措置法 文化財保護法 |
| 建物構造 | 木造 |
| 建物概要 | 地上2階 |
| 駐車場 | 有 (車種により異なります) 台数:3台あり |
| 下水 | 公共下水道 |
| 完成年月日 | 2025年12月 |
| 施工会社 | 株式会社アーネストワン |
| 土地権利 | 所有権 |
| 接道状況 | 方角:北東 道路幅員:6m 公私区分:公道 |
| 設備 | システムキッチン・カウンターキッチン・浄水器・TVモニタ付きインターホン・ディンプルキー・カードキー・火災警報器(報知機)・BT別室・暖房便座・温水洗浄便座・浴室乾燥機・バス1坪以上・トイレ2箇所・追焚機能・バルコニー・ルーフバルコニー・床下収納・日当り良好・バリアフリー・制震構造・設計住宅性能評価書・建築住宅性能評価書・フラット35適合証明書・フラット35S適合証明書・給湯・洗髪洗面化粧台・プロパンガス・複層ガラス・上水道・下水道・電気・駐車場3台分 |
| 取引態様 | 一般媒介 |
| 手数料 | 手数料必要 |
| 引渡し/入居日 | 即可能 |
| 物件番号 | 444909 |
| 最終更新日 | 2026-02-13 |
























































