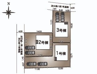
新築住宅 長野県松本市横田4丁目 クレイドルガーデン横田第2 2号棟
- 価格3280万円
- 土地面積181.62m2
- 間取4LDK(LDK17帖、洋風和室5帖、洋室7.5帖・6.7帖・6帖)
- 建物面積98.82m2
- 通学区松本市立旭町小学校(680m)
松本市立旭町中学校(1020m)
最終更新日 2025年12月25日
☆オープン一周年記念キャンペーン実施中☆ 仲介手数料等ご相談承ります♪
YMR不動産/(株)YMR
0263-88-8470
ココスマを見てとお伝えください
地図・周辺環境
※物件位置が表示されていない場合があります。
また特に外部リンク先のGoogleマップでは、実際とは異なる位置が表示される場合があります。
物件の正確な位置は必ず取扱い会社へお問合せください。
YMR不動産/(株)YMR
0263-88-8470
ココスマを見てとお伝えください
物件詳細
| 価格 | 3280万円 |
|---|---|
| 土地面積 | 181.62m²(公簿) / 54.94坪 |
| 建物面積 | 98.82m² / 29.89坪 |
| 間取 | 4LDK(LDK17帖、洋風和室5帖、洋室7.5帖・6.7帖・6帖) |
| 所在地 | 松本市横田4丁目 |
| 建物名 | クレイドルガーデン横田第2 |
| 部屋番号 | 2号棟 |
| 通学区 | 松本市立旭町小学校(680m) 松本市立旭町中学校(1020m) |
| 交通 | 電車:篠ノ井線松本駅 距離3520m 徒歩44分 バス:信大横田循環線線 バス停北元町 距離400m 徒歩5分 最寄り駅までバス乗車11分 |
| 備考 | 景観法 都市再生特別措置法 宅地造成及び特定盛土等規制法 文化財保護法 図面と現況が相違する場合は現況を優先とします。 |
| 建物構造 | 木造 |
| 建物概要 | 地上2階 |
| 駐車場 | 有 (車種により異なります) 台数:2台あり |
| 下水 | 公共下水道 |
| 完成年月日 | 2026年3月 |
| 施工会社 | 株式会社アーネストワン |
| 土地権利 | 所有権 |
| 接道状況 | 方角:西 道路幅員:4m 公私区分:公道 |
| 設備 | システムキッチン・カウンターキッチン・浄水器・TVモニタ付きインターホン・ディンプルキー・カードキー・火災警報器(報知機)・BT別室・暖房便座・温水洗浄便座・浴室乾燥機・バス1坪以上・トイレ2箇所・追焚機能・バルコニー・ルーフバルコニー・床下収納・日当り良好・バリアフリー・制震構造・設計住宅性能評価書・建築住宅性能評価書・フラット35適合証明書・フラット35S適合証明書・給湯・洗髪洗面化粧台・都市ガス・複層ガラス・上水道・下水道・電気・駐車場2台分 |
| 取引態様 | 一般媒介 |
| 手数料 | 手数料必要 |
| 引渡し/入居日 | 2026年3月下旬 予定 |
| 物件番号 | 448348 |
| 最終更新日 | 2025-12-25 |















