貸店舗 長野県松本市城東1丁目 松永ビル 2B
- 賃料7.4万円
- 共/礼/敷6600円(税込)/1ヶ月/1ヶ月
- 保証金
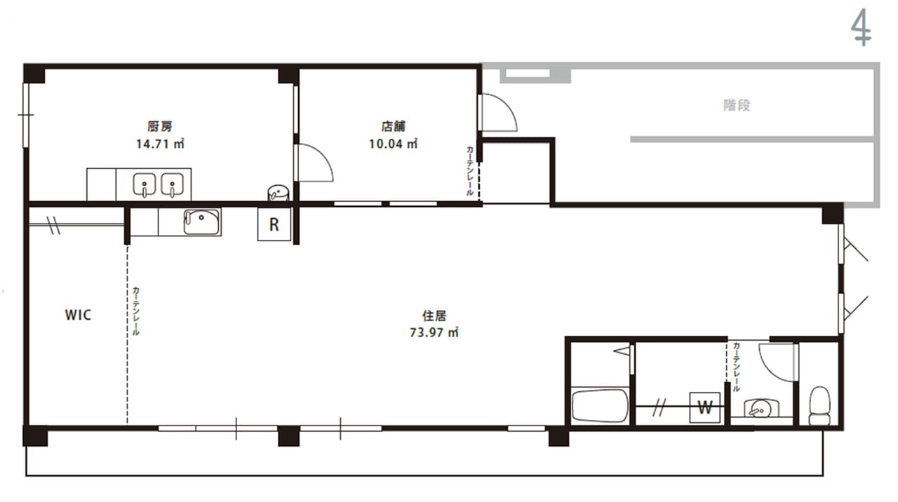
- 専有面積 38.76m² / 11.72坪
最終更新日 2025年11月20日
土間付きのオフィス・店舗です。士業、SEの事務所として、またクリエイターのアトリエ兼販売スペースに最適。
法人登記可、物販などの店舗、事務所可。
エイブルネットワーク松本駅前店 (株)センデン
0263-37-6155
ココスマを見てとお伝えください
地図・周辺環境
※物件位置が表示されていない場合があります。
また特に外部リンク先のGoogleマップでは、実際とは異なる位置が表示される場合があります。
物件の正確な位置は必ず取扱い会社へお問合せください。
エイブルネットワーク松本駅前店 (株)センデン
0263-37-6155
ココスマを見てとお伝えください
物件詳細
| 賃料 | 7.4万円 |
|---|---|
| 礼金 | 1ヶ月 |
| 敷金 | 1ヶ月 |
| 共益費 | 6600円(税込) |
| 専有面積 | 38.76m² / 11.72坪 |
| 所在地 | 松本市城東1丁目 |
| 建物名 | 松永ビル |
| 部屋番号 | 2B |
| 交通 | 電車:篠ノ井線松本駅 徒歩22分 |
| 備考 | 保証会社・火災保険加入必須です。 共益費に水道代を含みます。 エアコン1台・モニタ付きインターホン、簡易キッチン、洗浄暖房便座、24時間ゴミ出し可能 |
| 建物構造 | 鉄骨造 |
| 建物概要 | 地上3階 2階部分 |
| 駐車場 | 近有 有料 徒歩80m 有料一台:7920円/月(税込) |
| 完成年月 | 1982年12月 |
| 保険 | 有 |
| 契約期間 | 2年 |
| 設備 | BT別室・トイレ・エアコン・給湯・室内洗濯機置場・都市ガス |
| 取引態様 | 一般媒介 |
| 手数料 | 手数料必要 |
| 引渡し/入居日 | 2025年12月上旬 |
| 物件番号 | 446165 |
| 最終更新日 | 2025-11-20 |















