貸アパート 長野県東筑摩郡朝日村大字古見 地域優良賃貸住宅 テラスあさひ
- 賃料6.5万円
- 共/礼/敷-/なし/2ヶ月
- 間取2LDK
- 専有面積 77m² / 23.29坪
- 通学区朝日村立朝日小学校(500m)
松本市山形村朝日村中学校組合立鉢盛中学校(3800m)
村立あさひ保育園まで300m(徒歩数分)
最終更新日 2026年04月15日
朝日村の人口確保施策の一環として、地域優良賃貸住宅の整備を実施いたしました。本物件は一定期間(原則5年間、最長10年間)お住まいいただき、その後村内の宅地造成地や空き家等への住み替えを想定した住宅です。
朝日村
0263-99-2001
ココスマを見てとお伝えください
地図・周辺環境
※物件位置が表示されていない場合があります。
また特に外部リンク先のGoogleマップでは、実際とは異なる位置が表示される場合があります。
物件の正確な位置は必ず取扱い会社へお問合せください。
朝日村
0263-99-2001
ココスマを見てとお伝えください
物件詳細
| 賃料 | 6.5万円 |
|---|---|
| 礼金 | なし |
| 敷金 | 2ヶ月 |
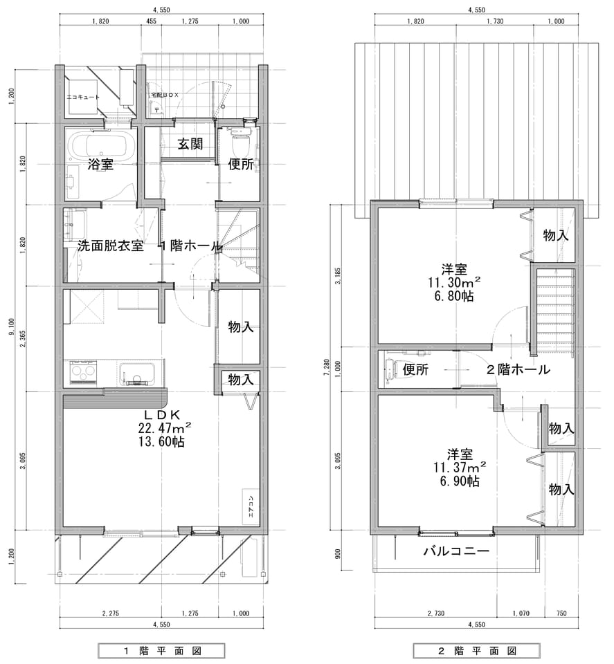
| 間取 | 2LDK |
| 専有面積 | 77m² / 23.29坪 |
| 所在地 | 東筑摩郡朝日村大字古見 |
| 建物名 | 地域優良賃貸住宅 テラスあさひ |
| 通学区 | 朝日村立朝日小学校(500m) 松本市山形村朝日村中学校組合立鉢盛中学校(3800m) 村立あさひ保育園まで300m(徒歩数分) |
| 交通 | 電車:篠ノ井線広丘駅 距離10200m 徒歩140分 自動車20分 バス:朝日広丘線 バス停中央公民館 距離500m 徒歩7分 最寄り駅までバス乗車25分 高速道路:長野道 塩尻I.C. 車20分 |
| 備考 | ・本物件への入居申込にあたり、かならず朝日村ホームページ(https://www.vill.asahi.nagano.jp/official/soshikikarasagasu/kikakuzaisei/kikakutanto/4/JutakuSesaku.html)または朝日村役場企画財政課窓口で配布している募集要項をご覧いただき、申込書類をご提出ください。 ・募集締切後、書類審査による入居者の選考を実施いたします。 ・本物件の入居は下記の条件を満たしていることが必要です。 1.「子育て世帯」または「新婚世帯」に該当すること ※子育て世帯:同居親族等に18歳未満の方、または妊娠している方がいる世帯 ※新婚世帯:配偶者を得て5年以内の方で、夫婦のいずれかの年齢40歳未満の世帯(事実婚関係、その他入居から6箇月以内に婚姻する予約者を含みます) 2.世帯の月額所得が158,000円以上387,000円以下の方で、朝日村に住所を有する、または入居に合わせ住所を朝日村に移す方 3.入居者および同居しようとする親族等が暴力団員でないこと 4.入居者および同居しようとする親族等に市町村税をはじめその他使用料などの滞納がないこと ・本物件は建設中のため、内覧はできません。 ・お問い合わせは朝日村役場企画財政課へお願いいたします。(電話:0263-99-4107)(Mail:kikaku■vill.asahi.nagano.jp ※スパム対策のため■を@マークに置き換えてご送付ください) |
| 建物構造 | 木造 |
| 建物概要 | 地上2階 |
| 駐車場 | 有 無料 台数:2台あり |
| 完成年月 | 2026年6月 |
| 契約期間 | 5年 |
| トイレ | 水洗 |
| 設備 | CATV・インターネット対応・IHクッキングヒーター・TVモニタ付きインターホン・BT別室・温水洗浄便座・トイレ2箇所・バルコニー・エアコン・収納スペース・外物置・日当り良好・メゾネット・オール電化・給湯・室内洗濯機置場・フローリング・洗面所・洗面台・宅配ボックス・複層ガラス・ゴミステーション・駐車場2台分・駐輪場 |
| 取引態様 | 貸主 |
| 引渡し/入居日 | 2026年07月下旬 予定 |
| 物件番号 | 452003 |
| 最終更新日 | 2026-04-15 |








