検索結果一覧に戻る

新築住宅 長野県塩尻市大字宗賀1654-21 【塩尻市宗賀 平屋新築戸建】

  • 価格3280万円
  • 土地面積308.44m2
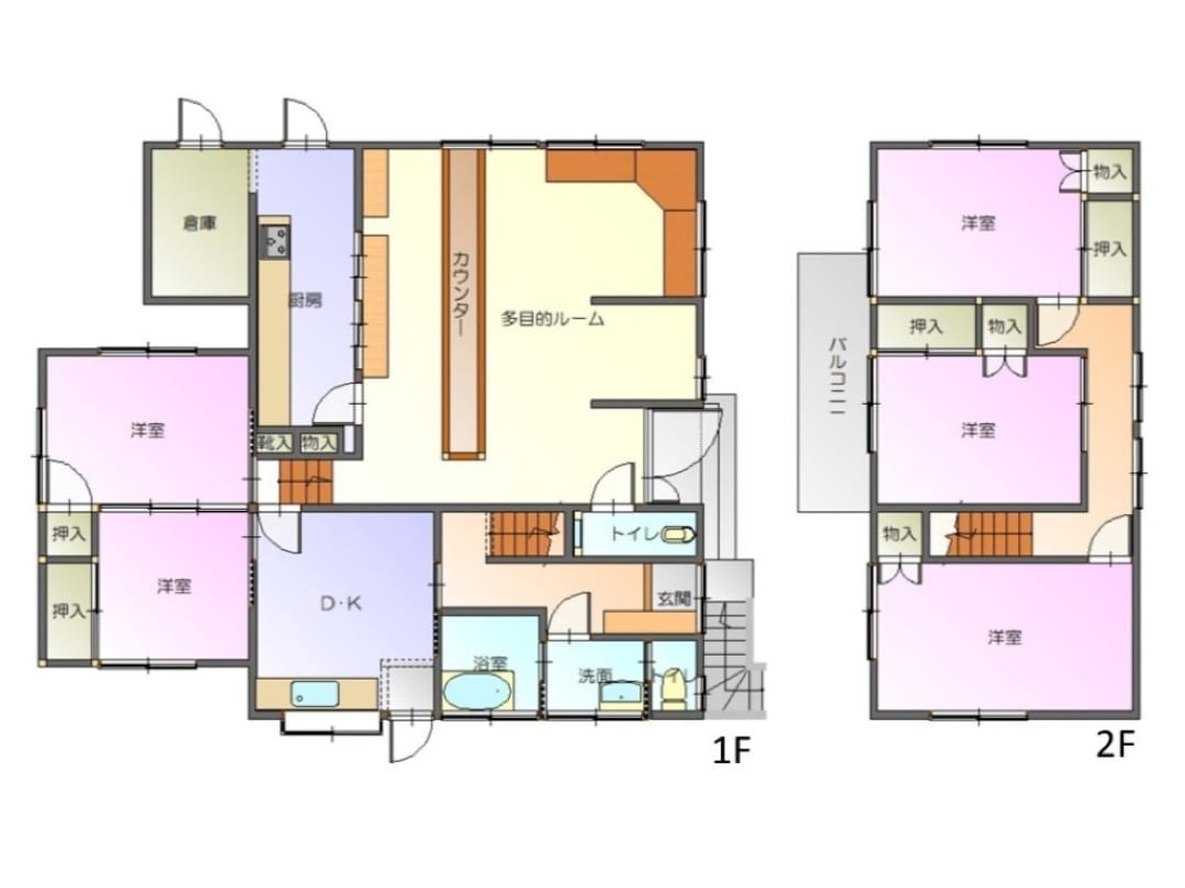
  • 間取3LDK(生活の中心に収納がある平屋)
  • 建物面積84.46m2
  • 通学区塩尻市立宗賀小学校(1900m)
    塩尻市立塩尻西部中学校(1600m)

最終更新日  2026年02月28日

◆新春キャンペーン 3月末まで◆
《仲介手数料不要》
駅や商業施設、病院が揃う
市内中心部まで車6分♪
家の中心にある4帖FCLで
“整う暮らし”が実現のシックな平屋
太陽光発電&
家具・カーテン・エアコン・照明付

セイブ&スマイルハウス
■■■■■■■■■■■■■■■■■
《新春マイホームキャンペーン 3月末まで!》
期間中に 建売住宅 or 建築条件付き土地 のご契約で
『選べるe-GIFT』20万円分プレゼント♪
詳しくはスマイルハウスHPをチェック!
※諸条件有 詳細はお問合せください。
■■■■■■■■■■■■■■■■■

【周辺環境】
□塩尻駅…車6分
□デリシア塩尻店…車6分
□西友塩尻西店…車6分
□桔梗ヶ原病院…車5分
□平出博物館…徒歩5分
□宗賀中央保育園…車4分
□宗賀小学校…徒歩24分
□塩尻西部中学校…徒歩20分

【おすすめポイント】
◆家の中心にある
 4帖ファミリークローゼットが特徴!
 寝室とLDKをつなぐ位置に設け
 散らかりにくい“整う暮らし”が実現。
◆ダークトーンで仕上げた
 都会的に暮らせるシック空間。
◆太陽光発電搭載で光熱費を軽減!
 家計にもやさしい暮らしを実現。
◆セイブ・スマイルハウスならでは♪
 エアコン・家具・カーテン・照明付
 全てコミコミですぐに住める家。

内覧受付中!お気軽にお問合せください♪

◇ご見学の事前予約でQUOカード2000円分プレゼント◇
※初めてお問合せいただく方に限ります。
シンプルなフラットデザインに自然な風合いをプラスした外壁材を使用し、モダンな外観に仕上げました。
シンプルなフラットデザインに自然な風合いをプラスした外壁材を使用し、モダンな外観に仕上げました。
【新春マイホームキャンペーン 3月末まで!】期間中に新築建売住宅 or 建築条件付き土地のご契約で『選べるe-GIFT 20万円分』をプレゼント♪
【新春マイホームキャンペーン 3月末まで!】期間中に新築建売住宅 or 建築条件付き土地のご契約で『選べるe-GIFT 20万円分』をプレゼント♪
この平屋の大きな特徴は、家の中心に置いた4帖のファミリークローゼット。使う位置にしまえる動線が自然とできあがります。
この平屋の大きな特徴は、家の中心に置いた4帖のファミリークローゼット。使う位置にしまえる動線が自然とできあがります。
4帖ファミリークローゼットは寝室とLDKをつなぐ位置にあるため、散らかりにくい“整う暮らし”が実現します。
4帖ファミリークローゼットは寝室とLDKをつなぐ位置にあるため、散らかりにくい“整う暮らし”が実現します。
太陽光発電システム&高性能エアコン2台&家具&カーテン&照明器具 全てコミコミ価格で今すぐ住めるお得なお家!
太陽光発電システム&高性能エアコン2台&家具&カーテン&照明器具 全てコミコミ価格で今すぐ住めるお得なお家!
お客様からご定評いただいている『4つのこだわり』。セイブ・スマイルハウスの建売住宅は住み手を考えて1つ1つ熟考して設計しています。建売住宅は、間取りがどこも同じ・設備が最低限といった一般的なものとは異なり、性能・設備のクオリティは落とさずにコストダウン。メリットがたくさんの建売住宅です♪
お客様からご定評いただいている『4つのこだわり』。セイブ・スマイルハウスの建売住宅は住み手を考えて1つ1つ熟考して設計しています。建売住宅は、間取りがどこも同じ・設備が最低限といった一般的なものとは異なり、性能・設備のクオリティは落とさずにコストダウン。メリットがたくさんの建売住宅です♪
セイブが売主の物件なら仲介手数料0円!直接売買だから手数料不要!
セイブが売主の物件なら仲介手数料0円!直接売買だから手数料不要!
地域内にはスーパーやコンビニ、飲食店など、日常生活に必要な施設が揃っています。また、塩尻市内には医療機関も充実しており、安心して生活できます。
地域内にはスーパーやコンビニ、飲食店など、日常生活に必要な施設が揃っています。また、塩尻市内には医療機関も充実しており、安心して生活できます。
玄関扉は外観とマッチするマットブラックをセレクト。玄関ポーチの軒天に木目調を取り入れ、温かみのあるアクセントを。
玄関扉は外観とマッチするマットブラックをセレクト。玄関ポーチの軒天に木目調を取り入れ、温かみのあるアクセントを。
玄関ホールには、幻想的な光沢感が美しいガラス技法「ラスターガラス」をモチーフとしたクロスを使用し、印象的に。
玄関ホールには、幻想的な光沢感が美しいガラス技法「ラスターガラス」をモチーフとしたクロスを使用し、印象的に。
可動棚付きの収納スペースも完備した機能的な玄関。ハンガーパイプ付きのECLには上着などを収納できます。
可動棚付きの収納スペースも完備した機能的な玄関。ハンガーパイプ付きのECLには上着などを収納できます。
クリエダークの床×グレーの天井が都会的なシック空間のLDK。落ち着いた色合いながら、しっかりと光を取り込みます。
クリエダークの床×グレーの天井が都会的なシック空間のLDK。落ち着いた色合いながら、しっかりと光を取り込みます。
奥行きのあるLDKはキッチンからの見通しも良く、家事をしながらダイニング、リビングの様子を見守れます。
奥行きのあるLDKはキッチンからの見通しも良く、家事をしながらダイニング、リビングの様子を見守れます。
人造大理石のワークトップを用いた、清潔感がありお掃除も楽々なキッチン。IHクッキングヒーター&食器洗浄乾燥機搭載。
人造大理石のワークトップを用いた、清潔感がありお掃除も楽々なキッチン。IHクッキングヒーター&食器洗浄乾燥機搭載。
キッチンをダークカラー、カップボードをホワイトでコーディネート。洗練された美しいコントラストを生み出しています。
キッチンをダークカラー、カップボードをホワイトでコーディネート。洗練された美しいコントラストを生み出しています。
毎日の身支度が快適に行えるよう、収納力と作業性に優れたワイドタイプの洗面化粧台を採用。ゆとりある空間に。
毎日の身支度が快適に行えるよう、収納力と作業性に優れたワイドタイプの洗面化粧台を採用。ゆとりある空間に。
2帖の洗面脱衣室はキッチン横に配置し、水回りの家事動線を最短に。忙しい朝も余裕が生まれます。
2帖の洗面脱衣室はキッチン横に配置し、水回りの家事動線を最短に。忙しい朝も余裕が生まれます。
ブラックパネルが映えるスタイリッシュな浴室。浴室乾燥暖房機を備え、季節を問わず快適に使えます。
ブラックパネルが映えるスタイリッシュな浴室。浴室乾燥暖房機を備え、季節を問わず快適に使えます。
お手入れ簡単なTOTO製トイレを採用。ブラックのアクセントクロスが空間を引き締め、上質で落ち着きのある印象に。
お手入れ簡単なTOTO製トイレを採用。ブラックのアクセントクロスが空間を引き締め、上質で落ち着きのある印象に。
洋室はホワイトのフローリングとグレイッシュトーンのアクセントクロスで、シンプルながら飽きの来ない部屋に。
洋室はホワイトのフローリングとグレイッシュトーンのアクセントクロスで、シンプルながら飽きの来ない部屋に。
ダークなフローリングとランダムストライプのアクセントクロスで、洗練された大人の空間の寝室に。
ダークなフローリングとランダムストライプのアクセントクロスで、洗練された大人の空間の寝室に。
広々4帖のFCLは、家族で使えるようにリビングからも寝室からもアクセスできる子育て世代に嬉しい設計です。
広々4帖のFCLは、家族で使えるようにリビングからも寝室からもアクセスできる子育て世代に嬉しい設計です。
当社コーディネーターが選び抜いた、お家の雰囲気とぴったりの家具もセット。すぐに新生活をスタートできます。
当社コーディネーターが選び抜いた、お家の雰囲気とぴったりの家具もセット。すぐに新生活をスタートできます。
セイブ・スマイルハウスではツーバイフォー(2x4)工法を採用しています。床、壁、天井の6つの面で建物を支える頑丈な構造は地震の力を1点に集中させず、家全体にバランスよく分散させ、建物の変形や崩壊を防ぎます。
セイブ・スマイルハウスではツーバイフォー(2x4)工法を採用しています。床、壁、天井の6つの面で建物を支える頑丈な構造は地震の力を1点に集中させず、家全体にバランスよく分散させ、建物の変形や崩壊を防ぎます。
壁や天井の内側全面に石膏ボードを貼るツーバイフォー工法は、構造材が着火点に達するまでの時間を大きく遅らせることができます。さらに、枠組材などがファイヤーストップ材となり、火の燃え広がりを防止します。
壁や天井の内側全面に石膏ボードを貼るツーバイフォー工法は、構造材が着火点に達するまでの時間を大きく遅らせることができます。さらに、枠組材などがファイヤーストップ材となり、火の燃え広がりを防止します。
ツーバイフォー住宅の外壁は、枠組材の間に空気層をつくります。また、断熱材はその空気層に充填するため施工も容易。構造体自体を断熱化し易く、気密施工も容易なために建物自体がもともと優れた断熱性・気密性を兼ね備えます。
ツーバイフォー住宅の外壁は、枠組材の間に空気層をつくります。また、断熱材はその空気層に充填するため施工も容易。構造体自体を断熱化し易く、気密施工も容易なために建物自体がもともと優れた断熱性・気密性を兼ね備えます。
住宅の省エネ性能に基づき算出された電気・ガス等の年間消費量に、全国統一の燃料等の単価を掛け合わせて算出した1年間の光熱費を目安として示しています。
住宅の省エネ性能に基づき算出された電気・ガス等の年間消費量に、全国統一の燃料等の単価を掛け合わせて算出した1年間の光熱費を目安として示しています。
【LINE公式アカウントはじめました!】 最新情報をLINEで配信中!LINE限定のお得な情報をチェック♪友だち追加はスマイルハウスHPより♪
【LINE公式アカウントはじめました!】 最新情報をLINEで配信中!LINE限定のお得な情報をチェック♪友だち追加はスマイルハウスHPより♪
(株)セイブ

(株)セイブ
担当:セイブ&スマイルハウス 0263-27-9910 ココスマを見てとお伝えください

地図・周辺環境

Googleマップを開く

※物件位置が表示されていない場合があります。
また特に外部リンク先のGoogleマップでは、実際とは異なる位置が表示される場合があります。
物件の正確な位置は必ず取扱い会社へお問合せください。


幼稚園、保育園
宗賀中央保育園まで2.1km(車4分)保育目標は「心身ともに健康で活気あふれる子ども」。朝全員で体操をしたりマラソンを行ったりと、皆で体を動かしています。戸外での活動、実体験を大切にした保育を展開しています。
小学校
塩尻市立宗賀小学校まで1.9km(徒歩24分)学校目標は「豊かな知恵・優しい心・丈夫な体」。創立150年以上の歴史ある小学校です。中山道の宿場街として栄えた面影を残し、四季の豊かな自然に恵まれた環境で学習しています。
中学校
塩尻市立塩尻西部中学校まで1.6km(徒歩20分)学校目標は「観(学び合う)・錬(磨き合う)・恕(触れあう)」。畑に囲まれた田園地帯にあります。「まなび庵」として生徒のいない時間帯に社会教育施設として開放されています。
ショッピング施設
ウイングロード(デリシア塩尻店)まで2.8km(車6分)営業時間は9:00~21:00。デリシア、100円ショップ、ドラッグストア等からなるショッピング施設です。3Fではカルチャーセンターとして様々な講義や教室も催されています。
ショッピング施設
西友塩尻西店まで3.3km(車6分)24時間営業で、急なお買い物にも嬉しいスーパーです。好評のPB商品やお手頃価格商品が豊富で人気を集めています。同じ敷地内にファッションセンターしまむらも建ち並びます。
病院
桔梗ケ原病院まで2.4km(車5分)診療科目は内科、外科・呼吸器外科、整形外科、リハビリテーション科、循環器内科、耳鼻咽喉科など。地域社会で医療・介護を提供する「地域包括ケアシステム」の構築に努めています。
レジャー・観光
平出博物館まで350m(徒歩5分)塩尻市内の遺跡から見つかった土器や石器、民俗資料などが展示されています。縄文時代から平安時代にかけての大集落跡の平出遺跡も体験できる、自然豊かな博物館です。
その他
塩尻駅まで3.1km(車6分)JR中央本線とJR篠ノ井線が接続し、特急列車「あずさ」「しなの」が停車するターミナル駅です。ホームにある塩尻名産のブドウの木柵や、日本一間口の狭い立ち食いそば屋が特徴です。
(株)セイブ

(株)セイブ
担当:セイブ&スマイルハウス 0263-27-9910 ココスマを見てとお伝えください

物件詳細

価格 3280万円
土地面積 308.44m²(公簿) / 93.3坪
建物面積 84.46m² / 25.54坪
間取 3LDK(生活の中心に収納がある平屋)
所在地 塩尻市大字宗賀1654-21
建物名 【塩尻市宗賀 平屋新築戸建】
通学区 塩尻市立宗賀小学校(1900m)
塩尻市立塩尻西部中学校(1600m)
交通 電車:中央本線洗馬駅 距離2400m 徒歩30分 自動車5分
電車:篠ノ井線塩尻駅 距離3200m 徒歩40分 自動車6分
高速道路:長野道 塩尻I.C. 車10分
備考 「床尾地区」地区計画有
建物構造 2×4
建物概要 地上1階
駐車場 有 台数:4台あり
下水 公共下水道
完成年月日 2025年12月
施工会社 株式会社スマイルハウス
土地権利 所有権
その他一時金 あり
上水道負担金 91300円
下水道受益者負担金 231330円
接道状況 方角:東 道路幅員:6m 公私区分:公道 接面:18.8m
設備 システムキッチン・カウンターキッチン・IHクッキングヒーター・浄水器・食器洗浄乾燥機・TVモニタ付きインターホン・火災警報器(報知機)・BT別室・暖房便座・温水洗浄便座・浴室乾燥機・バス1坪以上・追焚機能・庭・エアコン・ウォークインクローゼット・日当り良好・閑静住宅街・24時間換気システム・田舎リゾート向き・オール電化・省エネラベル・BELS/省エネ基準適合認定・給湯・洗髪洗面化粧台・照明器具付き・複層ガラス・上水道・下水道・電気・駐車場3台分
取引態様 売主
手数料 不要
引渡し/入居日 即可能
管理番号 880311
物件番号 450580
最終更新日 2026-02-28
取扱い不動産会社

(株)セイブ

0263-27-9910

「ココスマを見て」とお伝えいただくと対応がスムーズです

公開物件 41 物件 ※ご覧のココスマサイト内の公開数です
営業時間 10:00 〜 18:00
定休日 水曜日
住所 〒390-0833
長野県松本市双葉24-10
宅建番号 長野県知事免許(8)第3568号

長野県の不動産一括査定サイト ココスマ不動産売却 加盟会社

松本地域に特化した地域密着型の会社です。土日祝日も営業しております!お気軽にお問合せください♪

松本市・塩尻市・安曇野市周辺を活動範囲とする、地域に愛されて30年以上の地域密着型不動産会社です。土地情報や新築住宅、中古再生住宅等、取扱い物件多数!建物のご案内から資金計画、住宅ローンの手続きまで、トータルでお手伝いいたします。
HPでは、一般の方には公開されていない会員様限定のプレミアム物件をご覧いただけます♪ぜひ、弊社HPをご覧になり会員登録をして、オトクな物件情報をゲットしましょう!(セイブHP:https://seibunet.jp/)

この物件についてお問い合わせ(無料) ※取り扱い元の会社にメールが届きます

お名前必須
 姓   名
ふりがな必須
せい  めい
電話番号必須
FAX番号

※資料のFAX送付をご希望の場合は必ずご入力下さい。

E-mail必須

お住まい
※資料の郵送をご希望の場合は必ずご入力ください。

郵便番号
都道府県
市区郡町村
町名・番地
建物名等

お問い合わせ内容 必須







ご希望の条件、ご予算、その他質問事項があればご記入下さい

条件が近いほかの不動産情報

(株)セイブの不動産情報 一覧を見る  賃貸物件を見る  売買物件を見る


ココスマ不動産売却 あなたの不動産、今いくら?家・土地を売るならまず比較!松本・安曇野・諏訪・伊那・飯田エリアの、査定・売却相談はココスマ不動産売却へ! 長野県の不動産一括査定サイト 利用料無料