検索結果一覧に戻る

中古売マンション 長野県松本市渚2丁目3番5号 ラフィーネ渚グラントーレ 1101号室

  • 価格2580万円
  • 管理/修繕19000円/20240円
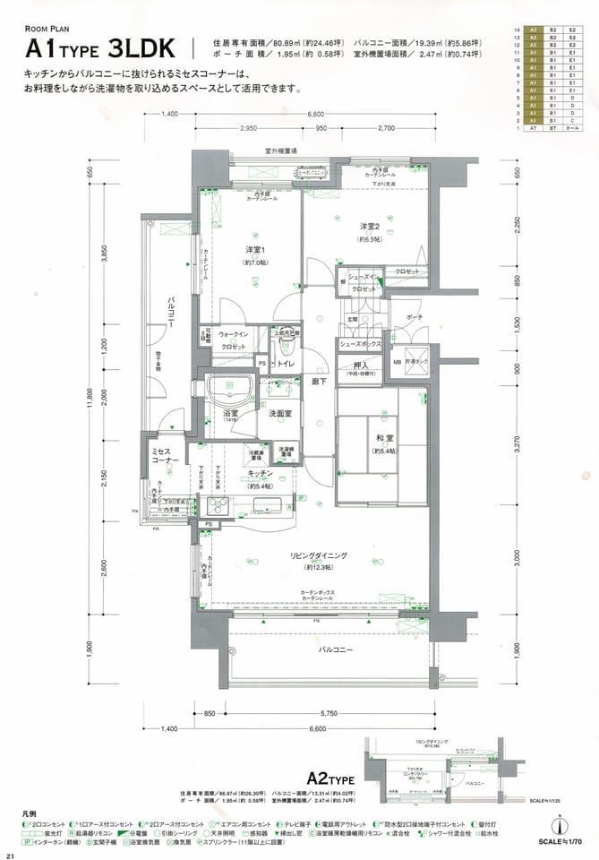
  • 間取3LDK(和5.4,洋7・6.5,LDK12.3)
  • 専有面積 80.89m² / 24.46坪(壁芯)
  • 通学区松本市立田川小学校(480m)
    松本市立丸ノ内中学校(780m)

最終更新日  2026年02月23日

物件価格2,580万円、リフォーム500万円、諸費用200万円、総額3,280円をフルローンしたと仮定し、金利1.2%、35年返済にて計算しますと、月々の返済額は¥95,678円になります。

醍醐 英治

地震に安心と言う価値を感じる松本ライフ!

当時松本市内初「免振構造マンション」として建てられた物件で、地面の揺れが伝わりにくく家具家電が転倒しにくい構造です。因みにそれ以降、免震構造で建てられる物件は少なく、実際に揺れの大きな地震があった際も、その構造が威力を発揮して、周囲の建築物に被害が散見された中、ほぼ問題が無かったとオーナーさんは仰っておりました。住宅の品質担保を証明する建設住宅性能評価書有なので、耐震性や耐火性など10項目の評価が明記されています。また広々とした延床面積80.89㎡の居室空間で、その上昼間は管理人さんも常駐しておりますので安心して暮らせます。家族の安心拠点になる3LDK。大規模修繕を終えたばかりで外観もリニューアルされて綺麗です。ご案内いたしますのでお気軽にご連絡ください。 平日は管理人さん常駐にてウロウロしていると不審者と間違われます!(私も実は…)
「見かけが好き」も物件選びの立派な決め手のひとつ
「見かけが好き」も物件選びの立派な決め手のひとつ
リビングにいながら隣の和室の気配を感じられて育児や介護に優しい間取り
リビングにいながら隣の和室の気配を感じられて育児や介護に優しい間取り
日を重ねるごとにこの佇まいに愛着が湧いてきそう
日を重ねるごとにこの佇まいに愛着が湧いてきそう
停めやすい平置きの駐車場は日々の暮らしを快適にしてくれそう
停めやすい平置きの駐車場は日々の暮らしを快適にしてくれそう
エントランスはまさに「住まいの顔」
エントランスはまさに「住まいの顔」
ゴミ置き場がきれいに保たれていると気分◎!
ゴミ置き場がきれいに保たれていると気分◎!
サステナブルな自転車ライフを応援
サステナブルな自転車ライフを応援
プライバシーが知られがちな場所だから、きちんと管理されているかの確認必須
プライバシーが知られがちな場所だから、きちんと管理されているかの確認必須
エレベーターは日々利用するものだから、そのスペックも大事
エレベーターは日々利用するものだから、そのスペックも大事
室内廊下に面したエレベーターで、快適な毎日を
室内廊下に面したエレベーターで、快適な毎日を
一旦外へ出てから扉を開けて戻った場所に非常用室内階段があります。まさかの時に室内階段は安心
一旦外へ出てから扉を開けて戻った場所に非常用室内階段があります。まさかの時に室内階段は安心
同一階にあるトランクルームはとても有難い
同一階にあるトランクルームはとても有難い
オール電化マンションならではのエコキュートスペース
オール電化マンションならではのエコキュートスペース
住まいの「第一印象」となる玄関
住まいの「第一印象」となる玄関
強風の時でも全く問題ない室内廊下からの玄関
強風の時でも全く問題ない室内廊下からの玄関
玄関で靴を履いて、脱いでリセットスイッチ入ります
玄関で靴を履いて、脱いでリセットスイッチ入ります
廊下を置くまで進むとLDKに辿り着きます
廊下を置くまで進むとLDKに辿り着きます
足腰に不安がある方でも手すりがあれば断然安心
足腰に不安がある方でも手すりがあれば断然安心
温水洗浄便座もあって快適トイレ
温水洗浄便座もあって快適トイレ
洗顔や歯磨きなど毎日使う洗面所だから要チェック!
洗顔や歯磨きなど毎日使う洗面所だから要チェック!
天気に左右されずいつでも洗濯物が乾かせるという安心感浴室暖房換気扇
天気に左右されずいつでも洗濯物が乾かせるという安心感浴室暖房換気扇
手すり設置済みで、入浴補助、介護側の負担も軽減
手すり設置済みで、入浴補助、介護側の負担も軽減
料理から片付けまでをイメージしながら使い勝手を確認したい
料理から片付けまでをイメージしながら使い勝手を確認したい
お掃除のしやすさも気になるポイントIHクッキングヒーター
お掃除のしやすさも気になるポイントIHクッキングヒーター
お掃除性の高いレンジフードは要チェックポイント
お掃除性の高いレンジフードは要チェックポイント
吊戸棚があれば、収納力もバッチリ
吊戸棚があれば、収納力もバッチリ
ものが多い人にとって収納力はやっぱり大事なチェックポイント
ものが多い人にとって収納力はやっぱり大事なチェックポイント
新築時パンフレットの言うミセスコーナー(笑)眺めが良すぎて作業の手が止まりそう
新築時パンフレットの言うミセスコーナー(笑)眺めが良すぎて作業の手が止まりそう
南西方向の眺望は松本空港発着便も見えます
南西方向の眺望は松本空港発着便も見えます
ALSOKに守られ、防犯カメラに守られ、モニター付きオートロックに守られる安心感
ALSOKに守られ、防犯カメラに守られ、モニター付きオートロックに守られる安心感
とにかく広い奥行き、何に使うかはあなた次第
とにかく広い奥行き、何に使うかはあなた次第
南方向に見るのは満開の桜や花火か?
南方向に見るのは満開の桜や花火か?
北は城山方向の眺望も楽しめる3方向に開けた間取り
北は城山方向の眺望も楽しめる3方向に開けた間取り
北西の部屋からは北アルプスの絶景が楽しめる!
北西の部屋からは北アルプスの絶景が楽しめる!
エレベーター横の扉を出たところから北方向の眺望、ここへ出てから室内階段へ
エレベーター横の扉を出たところから北方向の眺望、ここへ出てから室内階段へ
1階平面図
1階平面図
(株)あいさい

(株)あいさい
担当:醍醐 英治 050-3696-9382 ココスマを見てとお伝えください

地図・周辺環境

Googleマップを開く

※物件位置が表示されていない場合があります。
また特に外部リンク先のGoogleマップでは、実際とは異なる位置が表示される場合があります。
物件の正確な位置は必ず取扱い会社へお問合せください。


幼稚園、保育園
認定なぎさこども園
小学校
田川小学校
中学校
丸の内中学校
(株)あいさい

(株)あいさい
担当:醍醐 英治 050-3696-9382 ココスマを見てとお伝えください

物件詳細

リフォーム提案 詳細は情報提供元へご確認ください

画像クリックで拡大

・エコキュート交換
・居室、玄関、廊下、和室、LDKの天井壁クロス張替え
・同エリア床リニューアル
・照明スイッチプレート交換、器具LED化
・LDKエアコン交換
・キッチン交換、洗面ミラー交換並びに水栓金具交換 等

リフォーム目安金額 500~600万円
価格 2580万円
管理費 19000円/月
修繕積立金 20240円/月
間取 3LDK(和5.4,洋7・6.5,LDK12.3)
専有面積 壁芯80.89m² / 24.46坪
所在地 松本市渚2丁目3番5号
建物名 ラフィーネ渚グラントーレ
部屋番号 1101号室
通学区 松本市立田川小学校(480m)
松本市立丸ノ内中学校(780m)
交通 電車:篠ノ井線松本駅 距離720m 徒歩9分 自動車2分
バス:松本・島内線(ラーラ系統)線 バス停港町区 距離200m 徒歩3分
高速道路:長野道 松本I.C. 車5分
備考 ・現在居住に問題はありませんが、築年数なりの痛み、細かな故障個所などはございます。現況有姿での取引となります。
※参考リフォーム見積中(内装リニューアル、設備要所更新により約500万円程度見込み)
・使っていない西側のバルコニーや北側の室外機置場には鳩がよく来るので糞の害があります。
・同一階にトランクルーム有
建物構造 RC
建物概要 地上14階 11階部分
駐車場 有 (2026年2月28日総会にて変更決定) 有料一台:2000円/月 追加有料駐車:5000円/月
完成年月日 2008年4月
修繕積立基金 20240円
施工会社 窪田建設株式会社
設備 CATV・インターネット対応・システムキッチン・ディスポーザー・オートロック・24時間セキュリティ・ディンプルキー・モニター付きオートロック・防犯カメラ・火災警報器(報知機)・暖房便座・温水洗浄便座・オートバス・浴室乾燥機・バス1坪以上・バルコニー・2面バルコニー・エアコン・収納スペース・トランクルーム・日当り良好・バリアフリー・角部屋・24時間換気システム・外観タイル張り・オール電化・管理人-日勤・免震構造・設計住宅性能評価書・建築住宅性能評価書・修繕・点検の記録・給湯・室内洗濯機置場・フローリング・エレベーター・洗髪洗面化粧台・照明器具付き・複層ガラス・ペット相談可・駐車場2台分・駐輪場・バイク置場
取引態様 専任媒介
手数料 手数料必要
引渡し/入居日 相談
物件番号 450464
最終更新日 2026-02-23
取扱い不動産会社

(株)あいさい

050-3696-9382

「ココスマを見て」とお伝えいただくと対応がスムーズです

公開物件 12 物件 ※ご覧のココスマサイト内の公開数です
営業時間 ※8:00~9:00、16:00~20:00がコアタイムです。
定休日 不定休
住所 〒399-8303
長野県安曇野市穂高3142-2
宅建番号 長野県知事免許(2)第5589号

リモート対応可

スカイプ LINE Zoom Facebook Google Meet

独自サービスであなたとの出会いに「彩」を!

◎LINEによるお問合せ先ID:daigoeiji 又はQRコードをダウンロードし、LINEのQRコードリーダーより「ライブラリ」を選択、ダウンロードしたQRコードをタップして下さい。

 弊社代表は檜の家、土壁の家、ログハウス、2x4の家など木造住宅一筋、山好きで平成17年10月に信州へ移住し、薪ストーブのある板倉構法の家を住まいとして建築、その隣にある赤いトレーラーハウスが商談スペースです。建築・リフォームの経験が豊富で不動産の売買及び賃貸管理等に携わり、既存住宅現況調査(インスペクション)を主業務とした設計事務所も営んでおります。売却のご相談、ご購入のご相談には建築士としてのアドバイスもさせて頂く事が出来ます。
「あいさい」と言う会社名は愛妻につけて貰いました。お客様の人生の大きな節目に”飛躍”と言う「彩」を添えたい。そんな思いから「あいさい」を立ち上げました。一期一会を大切に、一生に一度の不動産取得に正しい選択をして頂けるよう、丁寧な応対を心掛けて参ります。メールやLINE、テレビ電話など、忙しい方への対応、土日祝祭日や不動産業者さんがお休みなことの多い火曜、水曜のご案内もお任せください!!

※はじめてのおうち探しの方に…住宅ローンの仕組み、お得な借り方など有名ファイナンシャルプランナー仕込みのお話しを先ずはさせて頂いております。どちらの業者で不動産を手にする事になってもとても有益なお話しです。又、都市部からの移住、物件処分を伴う移住なども実績多数。移住を伴う遠方の不動産処分もワンストップでお任せ頂いております。

この物件についてお問い合わせ(無料) ※取り扱い元の会社にメールが届きます

お名前必須
 姓   名
ふりがな必須
せい  めい
電話番号必須
FAX番号

※資料のFAX送付をご希望の場合は必ずご入力下さい。

E-mail必須

お住まい
※資料の郵送をご希望の場合は必ずご入力ください。

郵便番号
都道府県
市区郡町村
町名・番地
建物名等
リモート対応を依頼する

※リモート対応を希望する場合は利用可能なサービスを指定してください。選択にあるサービスのみ対応しております。
※リモート対応を希望されても、状況によりリモート対応ができない場合がございます。ご了承ください。


お問い合わせ内容 必須







ご希望の条件、ご予算、その他質問事項があればご記入下さい

条件が近いほかの不動産情報

(株)あいさいの不動産情報 一覧を見る  賃貸物件を見る  売買物件を見る


ココスマ不動産売却 あなたの不動産、今いくら?家・土地を売るならまず比較!松本・安曇野・諏訪・伊那・飯田エリアの、査定・売却相談はココスマ不動産売却へ! 長野県の不動産一括査定サイト 利用料無料