事業用建物 長野県松本市双葉3-31 南松本駅ビル
- 価格9500万円
- 土地面積355.73m2
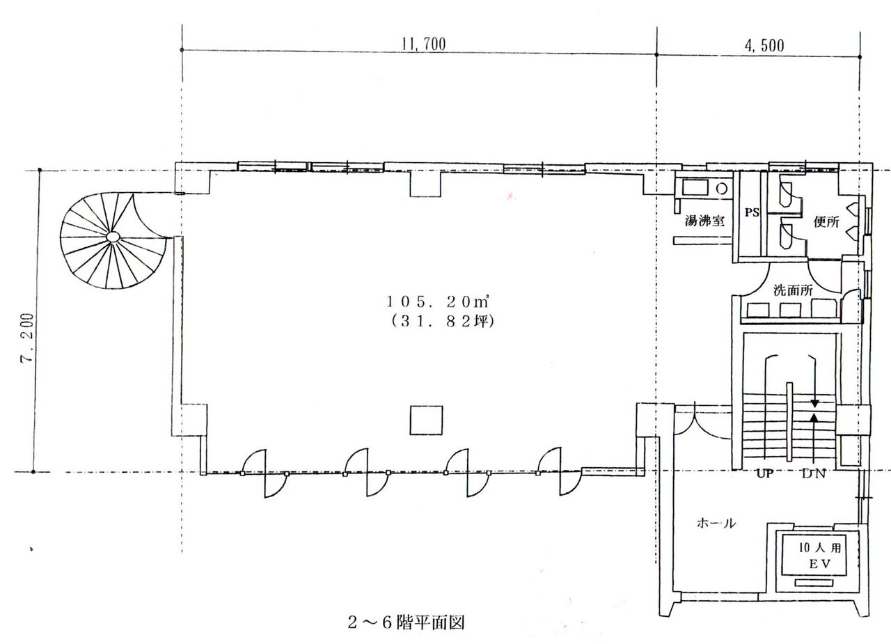
- 間取ワンルーム(各階に事務所等に利用できる約130㎡のスペース)
- 建物面積816.21m2
- 通学区松本市立開明小学校
松本市立信明中学校
最終更新日 2026年01月09日
2階・3階は学習塾、1、4~6階は事務所として賃貸中の貸しテナントです。(2026年1月時点で満室)表面利回り:11.81%
(株)サンポー 松本店
0120-85-1210
ココスマを見てとお伝えください
地図・周辺環境
※物件位置が表示されていない場合があります。
また特に外部リンク先のGoogleマップでは、実際とは異なる位置が表示される場合があります。
物件の正確な位置は必ず取扱い会社へお問合せください。
(株)サンポー 松本店
0120-85-1210
ココスマを見てとお伝えください
物件詳細
| 価格 | 9500万円 |
|---|---|
| 土地面積 | 355.73m²(実測) / 107.6坪 |
| 建物面積 | 816.21m² / 246.9坪 |
| 間取 | ワンルーム(各階に事務所等に利用できる約130㎡のスペース) |
| 所在地 | 松本市双葉3-31 |
| 建物名 | 南松本駅ビル |
| 通学区 | 松本市立開明小学校 松本市立信明中学校 |
| 交通 | 電車:篠ノ井線南松本駅 距離70m 徒歩1分 |
| 建物構造 | RC |
| 建物概要 | 地上7階 |
| 駐車場 | 有 台数:9台あり |
| 下水 | 公共下水道 |
| 湯権 | 無 |
| 完成年月日 | 1977年5月 |
| 土地権利 | 所有権 |
| その他一時金 | なし |
| 接道状況 | 方角:北 道路幅員:17m 公私区分:公道 接面:18.5m |
| 設備 | エアコン・給湯 |
| 取引態様 | 一般媒介 |
| 手数料 | 手数料必要 |
| 引渡し/入居日 | 相談 |
| 物件番号 | 448842 |
| 最終更新日 | 2026-01-09 |

















