中古住宅 長野県松本市大字笹賀
- 価格2498万円
- 土地面積218.9m2
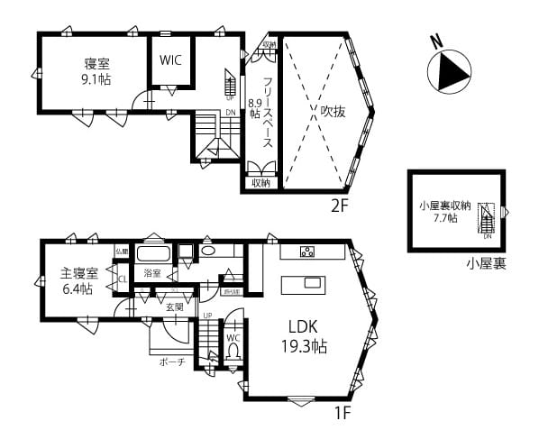
- 間取3LDK(洋9、洋6.5、和6、LDK17.5)
- 建物面積107.25m2
- 通学区松本市立二子小学校(950m)
松本市立菅野中学校(2400m)
最終更新日 2026年02月28日
家族時間がもっと楽しくなる、ゆとりと快適さを備えたリフォーム済み住宅
リフォームにより、やさしく心地よく生まれ変わったリフォーム済み中古住宅のご紹介です。水回り機器はすべて新品に交換済み。気持ちよく新生活をスタートしていただけます。都市ガス仕様なのも、毎日の家計にうれしいポイントです。
LDKはゆったり16.5帖。使い勝手の良いL型キッチンで、お料理の時間も自然と楽しくなりそうです。全室6帖以上のゆとりある間取りに加え、ウォークインクローゼットも完備。和室もあり、ご家族それぞれの時間を大切にできます。
キッチン横には便利な土間スペースを設置。買い物帰りの荷物置きや、犬のお散歩帰りの足ふき場としても活躍します。さらに、お庭として楽しめるアウトドアスペースもあり、家庭菜園やおうち時間の充実にもぴったりです。
駐車は2台可能。閑静な住宅街に位置し、落ち着いた暮らしが叶います。コンビニまで徒歩約10分、二子小学校まで徒歩約950mと生活利便も良好です。
写真だけでは伝わらない心地よさを、ぜひ現地でご体感ください。気になる方はどうぞお気軽にお問い合わせください。
360°パノラマ画像
あおぞらテラス不動産/(株)OHARA
担当:小原 輝久
0263-50-4195
ココスマを見てとお伝えください
地図・周辺環境
※物件位置が表示されていない場合があります。
また特に外部リンク先のGoogleマップでは、実際とは異なる位置が表示される場合があります。
物件の正確な位置は必ず取扱い会社へお問合せください。
あおぞらテラス不動産/(株)OHARA
担当:小原 輝久
0263-50-4195
ココスマを見てとお伝えください
物件詳細
| リフォーム・修繕履歴 | 履歴あり 水回り:システムキッチン新品、ユニットバス新品、洗面化粧台新品、トイレ、給湯器新品、ビルトインコンロ 施工年月 2026年 2月 内装:クロス全面張替、フローリング大規模増張、室内建具新品(一部)、畳表替え、襖・障子貼替など 施工年月 2026年 2月 外装:外壁塗装、屋根塗装 施工年月 2026年 2月 |
|---|
| 価格 | 2498万円 |
|---|---|
| 土地面積 | 218.9m²(公簿) / 66.21坪 |
| 建物面積 | 107.25m² / 32.44坪 |
| 間取 | 3LDK(洋9、洋6.5、和6、LDK17.5) |
| 所在地 | 松本市大字笹賀 |
| 通学区 | 松本市立二子小学校(950m) 松本市立菅野中学校(2400m) |
| 交通 | 電車:篠ノ井線平田駅 距離3000m 自動車9分 バス:地域連携バス 南松本・山形線 バス停二子西バス停 距離140m 徒歩2分 |
| 備考 | 令和8年2月内外装リフォーム済み 主なリフォーム内容 ■水回り:システムキッチン新品、ユニットバス新品、洗面化粧台新品、トイレ、給湯器新品、ビルトインコンロ新品 ■内装:クロス全面張替、フローリング大規模増張、室内建具新品(一部)、畳表替え、襖・障子貼替 など ■外装:外壁塗装、屋根塗装 ■その他:駐車場拡張工事、玄関ポーチタイル張替、エアコン新設、トイレ換気扇新設、照明新品(居室を除く)、砕石敷き込み(駐車場等)、ハウスクリーニング、鍵交換 など |
| 建物構造 | 木造 |
| 建物概要 | 地上2階 |
| 駐車場 | 有 台数:2台あり |
| 下水 | 公共下水道 |
| 完成年月日 | 1987年3月 |
| 土地権利 | 所有権 |
| 接道状況 | 方角:東 道路幅員:4m 公私区分:公道 |
| 設備 | システムキッチン・カウンターキッチン・TVモニタ付きインターホン・BT別室・暖房便座・温水洗浄便座・オートバス・バス1坪以上・追焚機能・バルコニー・エアコン・ウォークインクローゼット・給湯・洗髪洗面化粧台・都市ガス・上水道・下水道・電気・駐車場2台分 |
| 取引態様 | 媒介 |
| 手数料 | 手数料必要 |
| 引渡し/入居日 | 即可能 |
| 物件番号 | 449782 |
| 最終更新日 | 2026-02-28 |










































